6 мая 2024 в 14:15
В 2021 Аркадий Ротенберг заверял нас, что это он владелец дворца Путина, и что это вовсе не дворец, а всего лишь апарт-отель. Он уверенно говорил «журналистам» Мэша, что «пройдет полтора-два года и я вас приглашу и вы посмотрите на эту красоту, которая там будет».
Но прошло ни полтора ни два, а почти три с половиной года. Казалось бы, самое время паковать чемоданы и собираться в отпуск. Но вот какая ситуация — апарт-отеля… нет. Нет в поисковиках, нет на сайтах, нет в брошюрах и проспектах. Сюда, вопреки обещаниям Ротенберга, не привезли журналистов, не показали им красоту. Всё выглядит так, будто гостиницы просто не существует. Неужели Ротенберг нас всех обманул? Не верим!
В каком-то смысле он не обманул — стройка действительно окончена. Голые ободранные стены, которые нам показывали по телевизору, теперь блистают новеньким ремонтом. Мраморные полы начищены, мебель расставлена, изысканный декор и отделка готовы. Только это как было дворцом Путина, так и осталось.
И сегодня мы это не просто докажем, но и пригласим вас на уникальную экскурсию. Экскурсию, на которой раньше не был никто, ну может быть кроме самого Путина. В нашем распоряжении есть почти четыре часа видео изнутри каждой комнаты дворца Путина. Изнутри самого секретного и охраняемого объекта страны. Спальни, кабинеты с правительственной связью, спортзалы, криосауны и даже домашняя часовня, где мы оценим настоящую степень его безумия и увидим, что Путин молится сам на себя.
Сегодня мы буквально ворвемся к Путину домой и покажем вам, кем он является на самом деле — обезумевшим старым диктатором, который даже во время развязанной им же самим войны, не может остановиться и продолжает строить себе дворец.

Но давайте сначала вспомним, как начиналась история самой большой в мире взятки.
История началась в 2005 году. На мысе Идокопас, под Геленджиком Управление делами президента (УДП) выделило землю под строительство «детского спортивно-оздоровительного лагеря круглогодичного действия». Никакого лагеря, естественно, и не планировалось. Здесь сразу собирались строить дачу для молодого президента — Владимира Путина, чтобы в 2008 году, когда он уйдет на пенсию после второго срока, ему было где жить.

Об этом рассказал в 2010 году один из главных людей в этом проекте, бизнесмен Сергей Колесников. Он же рассказал и о том, кто дворец оплачивал. К олигархам просто приходили люди от Путина, просили скинуться на закупку медицинского оборудования, а на самом деле деньги шли на строительство дворца. Классический Путин — ворует у детей и больных.
Вот как дворец выглядел изнутри в то время. У нас есть сотни фотографий. Там золотое безумие.

После того, как эта история всплыла, нет, Путин не отказался от идеи тут жить. Зачем? Он решил просто замести следы — дворец несколько раз переписывали на разных формальных собственников. Не менялись только управляющие — это всегда были люди, близкие к Путину. Его друзья, жена его охранника, жена начальника управделами президента, группа юристов, трудоустроеная в компании племянника Путина. Ну и платили за все это друзья Путина.
Примерно в 2017 году обнаружилось, что из-за плохой вентиляции в бассейне во дворце появилась плесень и быстро распространилась по дому. Путин очень испугался плесени, но еще больше он испугался потерять любимый дворец. Все, кроме стен, было выкинуто и построено заново. Именно во время этого ремонта Навальный и выпустили наше большое расследование, там на видео видно брезент, стройматериалы и рабочих.
О дворце узнал весь мир, казалось бы, сейчас-то все, надо точно съезжать — спалили контору. Но нет, Владимир Владимирович так легко не сдается — дворец снова стали перестраивать и перепрятывать.
Параллельно, чтобы хоть как ответить сотне миллионов россиян, которые наш фильм посмотрели, была развернута БЕСПРЕЦЕДЕНТНАЯ пропагандистская истерика, помните? Несколько недель подряд ведущие федеральных каналов надрывались: это не Путина, Путин не такой, ему не нужен дворец. Это монтаж и мультики. Да что там, оправдывался сам Путин!
А все это потому, что и Путин и все вокруг него знали: именно этот несчастный дворец и есть самая больная и уязвимая точка Путина лично. Эти безумные интерьеры, эти тонны золота для вроде как демократически избранного главы государства.
Домашний стриптиз клуб, аквадискотека и личное казино на фоне путинских разговоров о скрепах, консерватизме и традиционных ценностях. Выглядит не очень. Вопиющая роскошь за которую заплатили безумными деньги: от кофейного столика за четыре с лишним миллиона до туалетного ершика за 60 000. Роскошь, которую Путин требует себе на фоне нищей и разоренной им же России.

И вся страна, благодаря Навальному, узнала об этом. Узнала и никогда не сможет забыть. За это Алексей заплатил самую высокую цену — заплатил собственной жизнью.
Но его дело мы, несомненно, продолжим. Приглашаем вас снова на экскурсию во дворец. Больше никаких 3D визуализаций, графики и архитектурных набросков, никаких спекуляций — только факты. Только реальные кадры, сделанные нашим смелым агентом внутри дворца, где он со скрытой камерой прошелся по каждому помещению.
Добро пожаловать в Прасковеевку, самый главный и эксклюзивный курорт на Черном море. Мы начинаем нашу уникальную прогулку вот отсюда.

Эта аллея, которая ведет к главному дому. Тут, как вы можете увидеть, прямо сейчас проходит конкурс на размещение максимального количества статуй на квадратный метр.

«Искусства не может быть слишком много», как бы говорит нам Владимир Путин. Полуобнаженные женщины? Дайте несколько. Обнаженные? Еще лучше! Музы, Богини, изящные дамы, кто-то с фруктами, кто-то с детьми.

Даже мужчина флейтист, и почему-то тоже абсолютно голый.

И вот вдалеке мы видим его и понимаем — ПРИШЛИ! Узнаваемый фасад, знакомые гигантские колонны из мрамора и как три года назад — копошатся рабочие. Это дворец Путина.

Понимаем, вам не терпится зайти внутрь, мы это совсем скоро сделаем. Но потерпите немного.

Во-первых, что вообще происходит, откуда у нас эти кадры? Объясняем: по территории дворца ходит человек со скрытой камерой. Ходит бесконтрольно, куда хочет, но камеру, естественно, приходится прятать, отсюда тряска и нечеткие кадры, но всё что нужно мы прекрасно увидим.
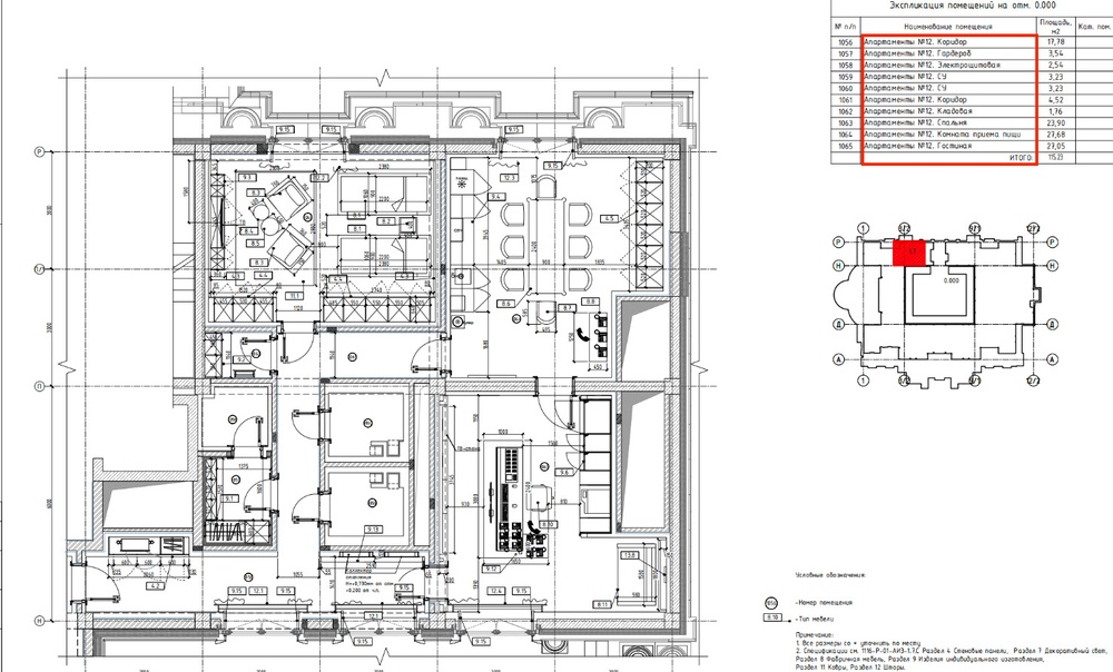
Во-вторых, это новые поэтажные планы дворца Путина, которые удалось достать журналистам издания «Проект», которыми они с нами любезно поделились. Сегодня у них тоже выходит расследование, обязательно посмотрите. На этих планах мы видим колоссальные изменения, которые претерпел дворец. Правда, касаются они только названий помещений. Все спальни переименовали в апартаменты. Музыкальную гостиную и читальню переименовали в лобби. Обеденный зал — в ресторан. По сути, архитектурно (с точки зрения планировки помещений, их назначения) существенно не изменилось ничего.
Эти планы никогда не должны были увидеть свет, но заморачивались они не очень сильно. Вот, например, возьмем апартаменты №12, которые обозначены на новых планах там, где раньше располагалась комната охраны.

Нам предлагается поверить, что это жилой гостиничный номер и что здесь будут останавливаться посетители одного из самых дорогих отелей мира. В первом помещении мы видим две почти вплотную стоящие односпальные кровати. Рядом комната приема пищи с кулером, микроволновкой и столом рассчитанным зачем-то на восемь персон. Тут же стоит столик с тремя стационарными телефонами.

Но еще больше вопросов вызывает вот эта комната в апартаментах №12. В ней состоит раскладывающийся диван, одно рабочее кресло, принтер и гигантский трехметровый стол для работы с 10 телефонами, двумя компьютерами, гигантским пультом непонятного назначения и панелью управления фонтанами. И это выдается за гостиничный номер.

Продолжим наш тур. В конце-концов, это все построено на украденные у вас деньги, так что давайте принимать работы у строителей!
В неотложном порядке мы спешим туда, куда все из вас мечтают попасть. Легендарная аквадискотека! Многие гадали как она выглядит, смельчаки высказывали предположения, но воочию мы видим любимую путинскую водную забаву в готовом виде впервые. Фонтан в центре пока не работает, но чаша аквадискотеки уже наполнены водой.

Признаюсь, мы впечатлены размером, с воздуха она казалось скорее уличной джакузи, вблизи понятно, что сюда можно усадить весь кооператив «Озеро» в полном составе. Сзади видно бар, который видимо и делает это место дискотекой, техника установлена, всё полностью готово к вечеринкам.

Недалеко от аквадискотеки один из входов во дворец.

Бесцеремонно следуем туда, хоть нас никто и не приглашал, и оказываемся в бассейне. Буйство лепнины, барельефы, безумные хрустальные люстры — все в стиле хозяина.

Вот это помещение — фитобар, здесь можно заказать себе смузи или кислородный коктейль.

Вдоль бассейна диваны и лежаки, а дальше что-то вроде спа-зоны с водными процедурами. Купаться Владимир Путин любит примерно десятью разными способами. Сначала, конечно же джакузи, которая уже наполнена водичкой.

Дальше за стеклянной дверью находится стол для приема душа лежа — душ Виши.

Напротив него стоячий циркулярный душ, в нем струи бьют в тебя со всех сторон.

В соседнем помещении три ванны для подводного массажа.

А дальше пульт, который выглядит, как будто с него можно управлять космическим кораблем, но этот всего лишь душ Шарко. К стенке напротив встает Владимир Путин и сотрудники ФСО поливают его из шлангов.

В этом же помещении контрастные купели, здесь они прямо подсвечены: синяя холодная, а оранжевая горячая (что-то в ней есть немного зловещее). У Путина такие и во всех резиденциях и во всех яхтах, мы о них сто раз рассказывали.

Обратите, кстати, внимание — вся техника американская. США, конечно наши враги, идеологические противники и прогнившее бездуховное место. Но это же не повод отказываться от их техники, правда?

Остался еще лечебный душ, но учтите, вы можете быть к этому не готовы. Вот эта штука, спрятанная за непрозрачной дверью, называется восходящий душ. Садишься, а дальше струя воды (под давлением одна-две атмосферы) делает свое дело. В пожилом возрасте, говорят, очень полезно.

Ничего интереснее мы на этом этаже конечно уже не найдем, но всё равно давайте осмотримся. Вот массажный зал в восточном стиле.

Вот еще один массажный кабинет — он может показаться не примечательным, но даже один несчастный стул здесь стоит 200 тысяч рублей.

Хамам, отделанный мрамором, ничего интересного.

А вот еще одна парильня — снова с восточными мотивами.

Золотые мозаики и выбор пара четырех ароматов.

Здесь же располагается агрегат, о внезапной поломке которого мечтают миллионы людей. Это криосауна. Она тебя не греет, а наоборот морозит, температура -100 градусов способствует омоложению организма. Так что каком-то смысле Владимир Путин и правда проводит время в холодильнике. Тут же и окошко есть — подсматривать не околел ли национальный лидер.

Прямо из спа-зоны на цокольном этаже по лестнице мы попадаем на главный, первый этаж. И тут у нас есть выбор, какую же из путинских гостиных мы хотим посмотреть первой? Налево пойдешь — в музыкальную гостиную попадешь, направо — в читальню.

Для конспирации помещения переименовали. Музыкальная гостиная превратилась в лобби №1, а читальня — в лобби №2. Но мы их переименовали лучше — Зал мании величия и Зал военных фантазий.

Начнем с того, что раньше было читальней. Покажем вам, как это выглядело раньше, потому что поменялось многое и очень характерным образом. До нашего сегодняшнего визита здесь было царство золотых орлов и романтических фресок. Какие-то очень нейтральные сюжеты — пейзажи, охота.

Теперь бездушные итальянские мотивы поменяли на то, что действительно по нраву Владимиру Путину. Эта картина называется Бой за Багратионовы флеши, на ней изображено одно из главных событиий Бородинского сражения.

Справа от нее висит другая — сражение между русскими и персидскими войсками под Елисаветполем 1826 года.

На другой стене еще две картины: первая изображает сражение при Сарыкамыше, а вторая посвящена разгрому Хазарии Святославом.

На третьей стене еще три картины: слева Ледовое побоище, справа почему-то снова разгром Хазарии, но картина отзеркалена (видимо решили, что дедушка старенький и не заметит подвоха), а по центру самая большая картина: «Кто с мечом к нам придет, от меча и погибнет!», на ней изображен Александр Невский. Оригинал картины висит в Большом Кремлевском дворце.

В одном месте комнаты вместо картины пока что зияющая пустота, но на рендерах мы видим что там планируют повесить — портрет Маршала Жукова.

Много изменилось, но что-то с нами, конечно, останется навсегда — орлы. Уже не золотые, но все еще очень узнаваемые.

Благодаря изданию «Проект», у которых есть смета на мебель в этом помещении. Мы узнаем, что два дивана стоят по 900 тысяч шутка.

Буфет за ними можно купить за 1,1 млн рублей.

Роскошный стол обошелся почти в два миллиона, и каждый стул по цене в 220 тысяч рублей, а их тут 10 штук.

Но диваны, буфеты, столы и стулья за миллионы рублей меркнут по сравнению вот с этой французской люстрой. Она сделана из золотисто-красного хрусталя и весит 336 килограммов. Её стоимость, внимание, 50 миллионов рублей.

Столько же выделили, например, на ремонт всех дворов в Калуге и капитальный ремонт камчатских больниц. Таких люстр в этом помещении две. То есть 100 миллионов рублей ушло только на люстры в в одном из сотен помещений путинского дворца.
Перейдем в соседнее помещение, бывшую музыкальной гостиной, настоящее название которой теперь — морской зал. Оно случайно проскочило в документах.

Ситуация с картинами тут аналогичная, только изображены не главные сухопутные сражения и видные военачальники в истории России, а картины с морской тематикой. Со стен, прямо над дверьми высотой в 3.5 метра, на Путина любуются адмиралы Павел Нахимов и Федор Ушаков, а между ними висит картина Айвазовского — «Вид приморского города».

На другой стене стоят бюсты каких-то женщин, но их, к сожалению, разглядеть не получается. Возможно, они принимали участие в важных морских сражениях — битве двух яхт при дворце в Прасковеевке.

А со стены напротив на всех них смотрит адмирал Крузенштерн.

Здесь будут стоять три столика-подставка за 420 тысяч каждый, два дивана почти по миллиону, шесть стульев по 300 тысяч за штуку.

Но стоимость самой дорогой мебели тут не найти — она сделана для Путина по индивидуальному заказу.

Самое дорогое, естественно, снова люстры: они стоят в районе 50 млн рублей за штуку.

Констатируем полное и окончательное помешательство Путина на собственном величии (он натурально видит себя продолжателем дела Ушакова и Нахимова, новым Александром Невским под люстрами на 200 миллионов). Записали, двигаемся дальше — в кабинет.
Глядя на это помещение, особенно смешно вспоминать, что нам пытаются втюхать, что это не дворец Путина, а гостиница. А это помещение тогда что, простите? Офис метрдотеля площадью 130 кв.м?

Выполнен он в темном дереве, есть мраморный камин, пустые книжные шкафы и золотые люстры.

Мебель, судя по надписям, якобы сделана в Сербии. Но не сомневаемся, что она вся итальянская, как Путин любит, а через Сербию её везли чтобы обойти санкции.

Компоновка кабинет точно такая же как и в его кабинете в Кремле: во главе стола место начальника, а перед ним места для докладчиков.

На этом столе, согласно новому плану, должен располагаться компьютер и телефоны спецсвязи, в том числе знаменитая вертушка — в точности как в Кремле. Неотъемлемая часть любого апарт-отеля, согласитесь!

Ну а теперь пришло время проводить вас в самое потайное место дворца. Если предыдущее помещение нам как бы намекали о том, что Владимир Путин сошел с ума, то это ставит окончательную точку. Мы идем в бывший зал игровых машинок, переделанный... в часовню. Здесь Владимир Путин разговаривает с Богом.
Помещение достаточно гнетущее.

Мраморный пол с узором, темные обои, стены по периметру комнаты отделаны декоративными металлическими панно с какими-то не очень православно выглядящими крестами.

В центре помещения аналой — это такая подставка для иконы или книги, слева стоит огромный напольный золоченый подсвечник (точно такой же стоит и справа).

Но главное, конечно, иконостас. Он очень монументальный, иконы в полный рост. По центру узнаваемое изображение Христа, по правую руку от него Богородица, а по левую, тут даже угадывать не надо, там подписано, — Святой князь Владимир.

Место для иконы не случайно, по левую руку от Христа обычно размещают того, в честь кого названа часовня. То есть это часовня Святого князя Владимира.

То, что Путин не просто ассоциирует себя с Князем Владимиром, а уже считает себя его перевоплощением, реинкарнацией — сомнений не вызывает. Он организует памятные мероприятия в честь князя, называет его именем подводные лодки, президентский фонд выделяет десятки миллионов рублей на этно-оперу про князя Владимира с певцом Шаманом в главной роли. Путин даже лично открывал огромный 17-метровый памятник князю прямо напротив Кремля.

Собиратель русских земель, воин, творец, просветитель, защитник от внешних врагов, основатель российского государства и чуть ли не русской нации — как только Путин его не называл. Они уже абсолютно не стесняются, Патриарх Кирилл от лица РПЦ говорит, что да, не бывает таких совпадений — Владимир Владимирович ну точно новое Красно Солнышко.
В помещении есть деревянный шкаф для священной утвари, кубков, вина и книг.

А напротив шкафа трон. Это называется стасидия, на ней можно и стоять и сидеть во время длинных служб.

В старинных русских храмах такие ставили для царей, так они и назывались — царское место.
Вот, например, костяной трон Ивана Грозного с точно такими же подлокотниками, он использовался при торжественных царских молебнах.

Сделаем паузу и представим: Владимир Путин, вроде как демократически избранный президент (как он притворяется), наемный госслужащий, построил себе безумный дворец за 100 миллиардов рублей и сидит там в темной комнате. На троне. Слушает молитвы и любуется на икону (как он думает) самого себя.
Вам уже наверное не терпится подняться наверх и осмотреть царские будуары, но и на этом этаже у нас осталось чем вас удивить. Вы наверняка помните так называемую кальяную, а по факту — стриптиз зал с шестом, который мы обнаружили дома у Путина в прошлый раз.

Пропагандисты потом особенно усиленно показывали именно это место. Мол, посмотрите, тут голые стены и куртки рабочих, тут нет никакого стрипушника.

Это помещение теперь называется лаунж-зоной. По сути и назначению ничего не поменялось — тут лишь заменили холодный паркет на ковролин, но сохранили арки по периметру.

Полукруглые диваны тоже на месте. А вот оставили ли сцену и знаменитый шест, увы, непонятно — эта часть помещения к сожалению скрыта от наших глаз.

Преобразился значительно и театр. Вот как он выглядел раньше:

А посмотрите как он выглядит сейчас. Огромная сцена — здесь хоть спектакль ставь, хоть концерт играй.

А наблюдать за всем можно из роскошных ложь. Правда специфика в том, что поместятся в этих ложах зрителей девять, не больше.

А это тренажерный зал. Прямо в дворцовых интерьерах с лепниной и хрустальными люстрами, будет размещено 20 тренажеров. Пока их даже не распаковали.

Но вот как это будет выглядеть согласно архитектурным планам:

Посчитать цену всего оборудования мы можем уже сейчас, ведь у нас есть полная смета. Вот эллипс за 1,6 млн рублей:

Велотренажер — миллион четыреста тысяч.

А подставка для гантелей обошлась в четверть миллиона.

Общая стоимость оборудования в качалке путина больше 13 млн рублей. Все тренажеры итальянские и один американский — фирмы HOIST, такие Путин ставит себе в тренажерные залы яхты и бронепоезда.
Справа на видео замечаем огромное зеркало и… к нашему удивлению — балетный станок. Скоро увидим Владимира Владимировича на сцене большого театра, не иначе.

Ну что, пойдем наверх? Двигаемся по коридору первого этажа, справа вход во внутренний двор, рядом с ним пост охраны. Как видим — человек начеку, никакая муха с камерой не пролетит.

Поднимаемся по главной лестнице (здесь и лифт есть, но мы лучше пешочком). На момент съемки здесь все еще идет ремонт, но все равно можно неплохо все разглядеть.

А вот второй пост охраны. Мы как ловкие ниндзя незаметно проскальзываем мимо.

А наверху коридоры, коридоры и еще коридоры. Бесконечные, почти как в фильмах ужасов. Десятки дверей, а за ними спальни. Мы в них еще обязательно попадем, но пока мы в каком-то холле.

Огромная статуя, которая видимо не поместились на аллее на улице.

Диван, телевизор на тумбе за два с лишним миллиона рублей.

Непонятно для кого расставлены фоторамки (ведь ни одного своего родственника Путин не признает) . Ну может быть портреты Сечина или Шойгу в них вставит!

У окна на постаментах стоят бюсты:

На выходе замечаем еще одну гигантскую статую — даму то ли с собачкой то ли с ягненком в ногах.

На этом этаже 11 спален: четыре огромных, почти по 300 квадратов, это хозяйские. А остальные поменьше предназначенные для людей попроще.

Но давайте сразу к самым интересным помещениям — хозяйским апартаментам. Все резиденции и даже яхты Путина устроены одинаково: спальни всегда отдельно, одна для него, другая для его спутницы жизни. Этот дворец не исключение, и у Алины Кабаевой (ну если ничего не поменялось) собственные апартаменты. Туда и заглянем.
Это первая гостиная, куда можно зайти прямо из коридора: диванчик, креслица, телевизор.

А теперь заходим в спальню. Тут тоже вся мебель на месте и расставлена она в строгом соответствии с планами помещений, которыми с нами поделился «Проект».

Симпатичное кресло по середине комнаты вы можете приобрести всего за 850 тысяч рублей.

Очень похожий комод мы нашли за 2,6 млн рублей. Слева стоит кровать, а прямо перед ней телевизор с хай-тек механизмом, который позволяет спрятать его под кровать. А когда нужно он выезжает на кронштейне.

За дверью возле окна еще несколько помещений: большая гостиная.

И белоснежная ванная комната с гардеробом.

Общая площадь царских покоев — 275 квадратных метров.
Такого же размера и спальня Путина. Направимся к ней! Личное и страшно охраняемое помещение, в которое нам очень успешно удается попасть уже в который раз.
Первая гостиная: огромное зеркало и стол на шесть гостей, мы нашли такой же (в другом цвете) за 2 млн рублей.

По телевизору показывают футбол, а рядом мы видим гигантские бюсты, к которым, как выяснилось, питает страсть Путин.

Из первой гостиной мы попадаем уже непосредственно в спальню. Какая-то мебель здесь еще затянута пленкой, чтобы не пылилась, но весь декор уже на месте; даже цветы расставлены.

Глаз сразу падает на симпатичный комод. Он стоит почти четыре млн рублей, как двушка в Воронеже примерно.

Роскошную кровать с балдахином мы тоже нашли без труда. За нее заплатили почти шесть млн рублей. Это как выплаты за двух погибших от обстрелов белгородцев

На прикроватной тумбочке обычно хранится самое дорогое. У Путина там стоит бронзовая фигура мишки. Он у нас хорошо снят отдельно, очень похож на фирменного медведя «Единой России». Даже во сне Путин думает о политике! Но бронзовую статуэтку на его месте мы бы все-таки держали от кровати подальше.

Следующая остановка: тайный будуар или вторая гостиная, также известная как комната отдыха. Вход прямо около изголовья кровати. Посторонним сюда нельзя, но для нас сделают исключение. Сразу видим огромный комод, он стоит он два с половиной млн рублей.

Напротив очень глубокий заваленный подушками диван, на который Владимир Путин может залезть с ножками.

Теперь проходим в ванную комнату. Здесь нас встречают статуи и круглая джакузи с огромным мозаичным пано над ней. Хорошо хоть тут не Бородинское сражение.

Заглянем и в туалет — здесь напротив унитаза зачем-то стоит пуф за 300 тысяч рублей. Наверное для адьютанта.

Дальше душевая комната. Там стоит точно такой же пуф за 300 тысяч и еще более впечатляющая мозаика.

Обратите внимание, как Владимир Владимирович обожает телевидение. Телевизор есть в ванной:

В спальне:

И по одному в каждой гостиной. Ну не может видимо Путин ни минуты без выпусков Екатерины Андреевой.

Прямо представляем как теперь Путин будет у себя в гостиной неуютно ёрзать и поглядывать на пульт и телевизор, вспоминая о нас. Но что поделать — апарт-отель все-таки общественное место, имеем право.
Наша экскурсия по путинскому дворцу все еще не закончена, но уверены, что уже сейчас, посмотрев на все это многие из вас недоумевают: да как это вообще всё возможно? Кто за это платит? Как это все содержат? Это же не дача уже просто, это карликовое государство с огромной инфраструктурой, созданное специально для отдыха одного человека.
Сейчас мы с вам посмотрим интереснейший документ — декларацию условий труда. Она подана в 2021 году от имени ООО Комплекс, то есть тем юридическим лицом, на которое оформлен дворец. Такой отчет ежегодная сдает каждая компания — это обычная бюрократическая процедура, фактически это просто список должностей, которые существуют в компании.
В нашем случае он даже не полный, но включает в себя больше 250 позиций. Людей, постоянно работающих и занимающихся просто обслуживанием путинского дворца.
Вы можете посмотреть этот список, кого там только нет: 15 уборщиков помещений, 13 специалистов по уборке территорий, 27 рабочих лестного и садово-паркового хозяйства, операторы стиральных машин, столяра, слесари, мойщики машин, 12 горничных...

Но наше самое любимое — герпетолог, он один.

Вы, может быть, даже не слышали про такого, а это между прочим очень важный для Путина ученый-натуралист. Герпетологи специализируются на изучении рептилий, пресмыкающихся и земноводных. Они изучают поведение змей, ящериц, черепах, лягушек; диагностируют и лечат болезни, которыми они болеют. Обычно такие специалисты работают в террариумах или в зоопарках, но тут, давайте все согласимся, найм такого человека полностью оправдан — специалист по жабам и гадюкам в путинском дворце точно необходим.
Финансируется строительство и содержание дворца по-прежнему — государственными компаниями под видом оказания несуществующих услуг. Компания Транснефть-Сервис тратит по 25 млн рублей в месяц на аренду неких нежилых помещений.

Другая структура Транснефти Транснефть-Терминал платит дворцу еще 30 млн за аренду и услуги, которые на самом деле не оказываются.

За эти деньги Транснефть могла бы снять здание площадью 10 тысяч квадратных метров на Тверской улице. Но 660 млн рублей в год просто выводятся из госкомпании, которую возглавляет друг Путина и коллега по КГБ Николай Токарев. Выводятся на нужды дворца.

В расследовании про дворец трехлетней давности мы говорили про очень необычное здание — подземный хоккейный комплекс, спорт-бункер.

Тогда мы не знали про него ничего, у нас был только спутниковый снимком, на котором видны очертания хоккейной коробки.

Настало время посмотреть что же там внутри, теперь у нас есть планы этого подземного здания, а точнее бункера, и некоторая документация.
Личное участие Владимира Путина проглядывается уже в списке требований к проектировщикам комплекса. От них требуется сделать «все красиво» и обвесить гербами борта хоккейного поля.

Посмотрим, наконец, планы. В верхней части есть места для оштрафованных игроков, справа хранится американская машина по уходу за льдом, стоит такая 10 миллионов рублей.

Внизу бар, по бокам от которого расположились трибуны для игроков.

В левой части этого этажа находится вип-зона с кабинетом врача, а также русская баня, массажный и косметологический кабинеты, парикмахерская. В общем, есть где прихорошиться после хоккейного матча.

Рядом с парикмахерской есть лифт, комментарии к которому будут излишни. Он отмечен как лифт первого лица. Ведет на второй этаж, в еще более роскошную часть строения.

Выходя из этого лифта Путин идет по длинному коридору прямо к зоне игровых автоматов. Вот она куда из дворца переехала!

Дальше установлена ложа для шести зрителей, фуршетная тубма и фуршетная зона для тех же шести человек. Полагаем, это единственный в мире хоккейный комплекс где мест для зрителей в разы меньше, чем мест для игроков.

Правее от фуршетной зоны находится ресторан на 16 человек.

Просто поразительно, конечно. Для Путина построили суперпрофессиональный и современный хоккейный комплекс, открытие которого было бы праздником в любом российском городе. А ему он нужен только для того, чтобы пару раз в год перед ним нелепо падали переодетые в хоккейную форму охранники и нелепо поддавались пожилые советские чемпионы.

Помимо всем известного хоккея у Путина есть и другое хобби, очень не публичное. О его успехах на этом поприще не снимают репортажи и о нем не написано в официальной биографии. Оказывается, Путин обожает стрельбу и во дворце ему построили личный тир!
Изначально подземный тир хотели разместить вдоль вертолетных площадок, рядом с подземным хоккейным комплексом.

Но потом передумали и разместили вот тут, недалеко от воды. Эта гигантская полоса и есть тир. Согласно документации, длина сооружения 213 метров, а ширина — шесть. В нем есть три линии стрельбы и установлены «подъемно-падающие мишенные установки». На них Путин может наклеивать портреты своих врагов.

В дальней части тира стоит пулеуловитель шестого класса броневой защиты, это означает, что тут можно стрелять из крупнокалиберной снайперской винтовки ОСВ-96, которая стоит в том числе на вооружении ФСО. Отдельно, увы, прописана необходимость исключить обратный рикошет пули в сторону Владимира Путина.

После этого расследования некоторые могут сказать: ну а какие у вас доказательства? Вдруг это все таки апарт-отель, вы не можете точно знать. Другие вообще скажут: все выдумка и мультики. Мы что-то такое точно услышим, как минимум от пропагандистов и прочих людей на зарплате у Кремля.
Поэтому давайте по пунктам.
Первое. Если это гостиница, то почему, уже после окончания стройки, уже год о ней нет нигде не единого слова? Ротенберг четко говорит: это бизнес, это привлекательный гостиничный комплекс, уникальный, сюда можно будет приехать в 2023-м году.
Так почему в 2024 сюда невозможно попасть?! Где реклама, где брошюра, где сайт? Почему не существует ни единой фотографии этой гостиницы? Журналист, которому Ротенберг предлагал скидку, так и не съездил на этот уникальный объект, получается?

Второе. Архитектура и планировка помещений. Почему в апарт-отеле есть один единственный на всех гостей очень роскошный кабинет со столом, точно таким же как в каждом кабинете Путина? Зачем там такие же телефоны спецсвязи как в кабинете Путина? Что по этим защищенным каналам обсуждать, заказывать по правительственной связи завтрак в постель и глажку рубашек? Где в этом отеле ресепшен и пропускная система, ничего этого нет. Все номера на распашку.

Почему в общей столовой отеля стоит один большой стол? Будущие гости этого места заранее знают что будут так близки, что каждый день готовы завтракать обедать и ужинать за одним столом?

Почему в огромном домашнем театре, со сценой как в настоящем, мест всего на девять человек?

Или где вы вообще видели отель с подземным хоккейным комплексом с лифтом для первого лица, для кого все это? Зачем гостям апарт-отеля молиться в домашней часовне святому князю Владимиру?
Третье. У нас есть документ — один из договоров, которые подписывают со всеми, кто там работает. Это соглашение о конфиденциальности и неразглашении. В нем указано, что про про это место и стройку нельзя рассказывать вообще ничего. Нельзя раскрывать название объекта, нельзя говорить, где он расположен, кто владелец. Нельзя рассказывать о назначении объекта — то есть как бы нельзя даже сказать что это апарт-отель.

Подрядчикам нельзя, внимание, «передавать друг другу Информацию по открытым каналам телефонной, телеграфной и факсимильной связи, а также с использованием сети Интернет».

За нарушение любого из этих пунктов — штраф миллион рублей.

Зачем подрядчикам, строящим публичное место, эти безумные правила? Информация и фотографии настоящих отелей размещаются в интернете, отели оплачивают рекламу чтобы люди их увидели, а не скрываются и не судятся за любую информацию о них.
Четвертое. С чего это госкомпания Транснефть переводит 660 миллионов рублей в год под выдуманными предлогами на строительство обычной гостиницы? Это же олигарха Ротенберга вы говорите! Почему платит Транснефть?
Это вообще не имеет никакого смысла. Ведь эта так называемая гостиница за 100 миллиардов рублей (уже больше!) и люстрами по 50 миллионов никогда в жизни не окупится. Даже если каждый из 11 номеров будут снимать за 500 тысяч в день каждый день года без перерыва, то окупится это через 50 лет. Без учета расходов на содержание, зарплаты и так далее — а это сотни миллионов в год.
Ну и пятое. Издание «Проект», которое поделилось с нами поэтажными планами «апарт-отеля» сумели найти и поговорить с человеком, непосредственно участвовавшим в проектировании этого объекта. Он подтвердил под запись, что это НЕ гостиница. Это дворец, частный дворец, предназначенный для одного конкретного лица.
И все, все что мы рассказывали три года назад — бесполетная зона, буферные леса записанные на ФСБ, выкупленные для того, чтобы ограждать дворец от посторонних, запрет даже подплывать к мысу — все это на месте. Все это никуда не делось и продолжает существовать, в то время как якобы здесь расположен апарт-отель Ротенберга. Вы за кого нас держите? На кого рассчитано вообще такое откровенное вранье?
У нас еще одно видео из дворца Путина, которое мы очень хотели показать вам в конце. Нет, там не будет уже золотых интерьеров, люстр за 50 миллионов, нет и античных статуй и полотен с великими полководцами.
Но смысла и символичности в этом коротком ролике больше, чем в любом другом. Наш тайны оператор идет ночью по территории дворца и видит перед собой обычную такую бытовку — это замызганный и грязный общий туалет для тех, кто в дворце не живет, а работает.

На дверях и стенах рисунки и надписи. Среди них главная:

Вот так путинская россия и устроена. У него — гигантский дворец, мечта обезумевшего от воровства и вседозволенности диктатора. А строят его обычные люди, обычные работяги, трудящиеся за копейки, которым не положен даже нормальный туалет. И все они прекрасно понимают: и про вранье про апарт-отель, и про сказки из телевизора, и про Ротенберга. У них нет сомнений, для кого они строят дворец. И что Леха был абсолютно точно прав.
Завтра у Владимира Путина будет пятая по счету инаугурация. Пятая, с момента захвата им власти. Давайте поздравим его, покажем расследование и этот текст вообще всем. Отправим ссылку знакомым, запостим его у себя в соцсетях — картинки, видео, все что угодно, главное, чтобы новые интерьеры дворца увидело как можно больше человек.
Он точно оценит. Ведь Путин десятилетиями нигде не появляется без сотен охранников и сотрудников ФСО. Он не бывает в общественных местах, даже посудой чужой не пользуется. Про чемоданчик вы тоже все слышали. Путин — абсолютный параноик трясущийся за свою жизнь и здоровье, и помешанный на собственной безопасности.
А мы взяли и пришли в его спальню, остались один на один с его посудой, кроватью, были в кабинете и даже домашней часовне. Прогулялись по его дворцу без какого-либо контроля. Мы публикуем вместе с этим расследованием новые поэтажные планы каждого помещения его драгоценного дворца и его спорткомплекса с лифтом для первого лица.
И если он снова от страха снесет этот дворец до голых стен в поисках жучков, ядов или еще какой-нибудь дряни из его собственного арсенала, снесет и построит себе новый. То мы снова туда попадем. Как это сделал Алексей Навальный, как эти сделали мы, как это будут делать журналисты, активисты и кто угодно после нас.
Ведь если мы опустим руки, то значит Путин победил и убийство Навального сойдет ему с рук. Мы не должны дарить Путину еще 6шесть лет безоблачной, безграничной, власти. Мы должны сопротивляться. Мы должны портить и рушит путинские планы. Кто как может: кто-то расследованиями, кто-то честными новостями, кто-то смелой и бескомпромиссной борьбой. Говорите с друзьями и близкими, распространяйте расследования, клейте листовки, не становитесь пушечным мясом в путинской ненужной войне. И не бойтесь говорить, что Леха был прав.